Apartament cu trei camere pe malul lacului Straulesti Bucureşti, Sector 1, zona Siseşti

Preț

150 000,00 €

București
Vezi pe hartă

Anunț depus

Detalii anunț

Detalii
Pozitionat intr-o zona superba, pe malul lacului straulesti, proiectul beneficiaza de 10.000mp de teren, dintre care mai bine de jumatate din acesta este destinat spatiilor verzi, aleilor pietonale si zonei de agrement.

Avantajul pe care vi-l ofera proiectul nostru, este posibilitatea de a va personaliza intregul apartament dupa bunul plac. Apartamentele din cadrul condominiului Lac Straulesti sunt predate proprietarilor la alb, iar acestia au astfel posibilitatea de a-si alege personal oferta preferata pentru usile interioare, parchet, ceramica, obiectele sanitare si alte finisaje. Datorita acestui aspect, pretul apartamentelor este mai mic pentru ca nu va sunt impuse costurile dezvoltatorului pentru finisajele respective.

Caracteristici
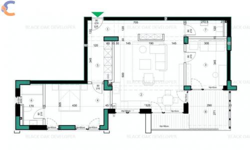
Nr. camere:3
Suprafaţă utilă:74,16 mp
Suprafaţă utilă totală:84.79 mp
Compartimentare:decomandat
Confort:lux
Etaj:Etaj 1 / 3
Nr. bucătării:1
Nr. băi:2
An construcţie:2022 (in constructie)
Structură rezistenţă:beton
Tip imobil:bloc de apartamente
Regim înălţime:D+P+3E
Nr. balcoane:1
Specificaţii
Utilităţi
Utilitati generale: Curent, Apa, Canalizare, Gaz, CATV, Telefon
Sistem incalzire: Centrala proprie, Incalzire prin pardoseala
Acces internet: Fibra optica
Finisaje
Ferestre cu geam termopan: PVC
Stare interior: Renovat
Usa intrare: Metal
Izolatii termice: Exterior
Dotări
Alte spatii utile: Terasa
Contorizare: Contor gaz, Apometre
Dotari imobil: Spatii agrement, Gradina, Lift, Curte, Curte comuna, Videointerfon
Alte detalii zonă
Amenajare strazi: Asfaltate
Iluminat stradal
Mijloace de transport in comun
Vecinătăţi
Lidl, Kaufland, Metrou Straulesti, Mega Image concept store, Restaurant 2 cocosi, Stejarii Country Club, Baneasa Shopping City, Colosseum Retail Park, Parc Mogosoaia, Parc Herastrau, Parc Bazilescu, Gradinita lui Matei, Scoala Aletheea, Spital Regina Mari, viitorul Spital Vasile cel Mare

Alte detalii
Imobilul beneficiaza de 82 de locuri de parcare, toate acestea fiind situate la demisol, cu preturi de la 15.000,-EURO + TVA

De asemenea, la demisol se regasesc si boxe pentru depozitare, ce pot fi achizitionate impreuna cu locul de parcare.

Raportează anunțul

Distribuie anunț

Gestionarea anunțului

Modifică anunțul Elimină anunțul

Statistici privind anunțul

Număr de vizite : 453

Ultima vizită : 14/04 ore 23:45

Nr. anunț : 8909